Sold Subject to Contract

New Build Property, Rear Of Gilfach Cynon, Merthyr Tydfil

Bed icon  0    Bath icon  0    

OIRO, £250,000

Save Saved
Contact Us

For further details on this property please call us

01443 218439


Book a Viewing

Features

  • Substantial new-build property
  • Approx. 2,000 sq ft of accommodation
  • Arranged over three spacious floors
  • Excellent investment or development opportunity
  • Ideal for buyers wishing to put their own stamp on a property
  • Core construction completed, reducing structural costs
  • Generous plot with impressive south-facing views
  • Detached double garage with motorised door

Full Details

We are delighted to present this substantial new-build property offering exceptional investment potential. Extending to approximately 2,000 sq ft and arranged over three spacious floors, this versatile home represents an outstanding opportunity for investors, developers, or buyers seeking a property they can truly put their own stamp on. Although the property requires completion, the core build is already in place, significantly reducing upfront structural costs. Occupying a generous plot with impressive south-facing views, the home also benefits from a detached double garage with a motorised door, providing excellent additional parking or storage. The property benefits from a generous internal footprint that lends itself to a variety of layouts. Its scale and structure offer excellent flexibility, allowing investors to optimise the space for maximum return. With increasing demand for well-located, high-quality detached properties, this property represents a rare chance to secure a sizeable new-build project. Opportunities of this scale and flexibility are seldom available. Early viewing is strongly recommended to appreciate the full potential this development offers.
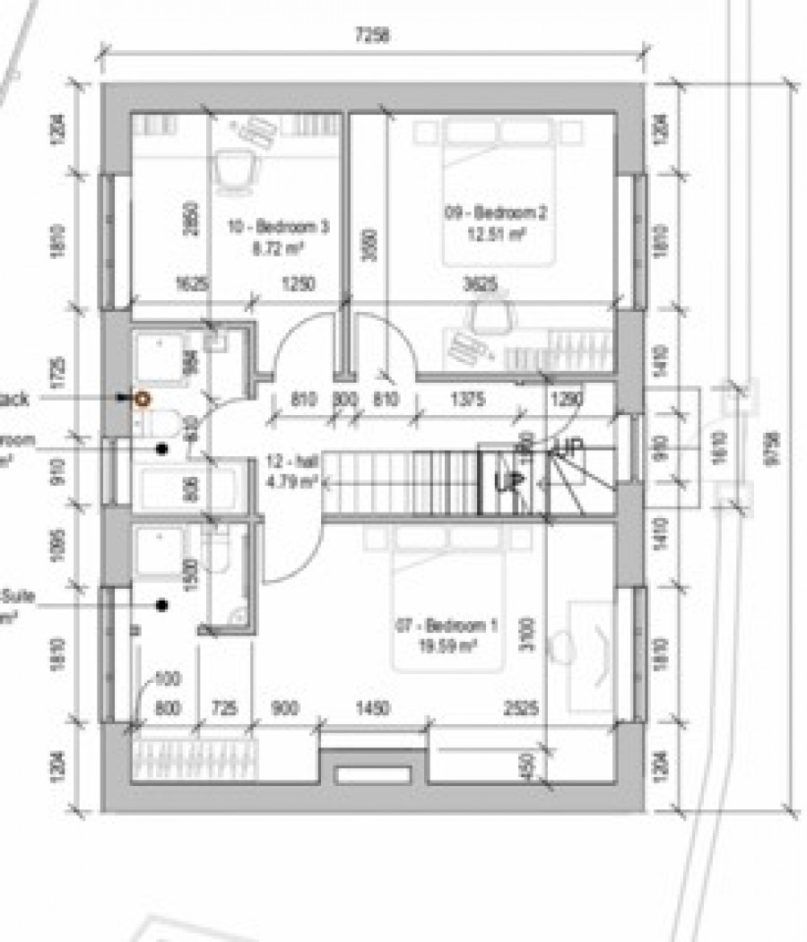
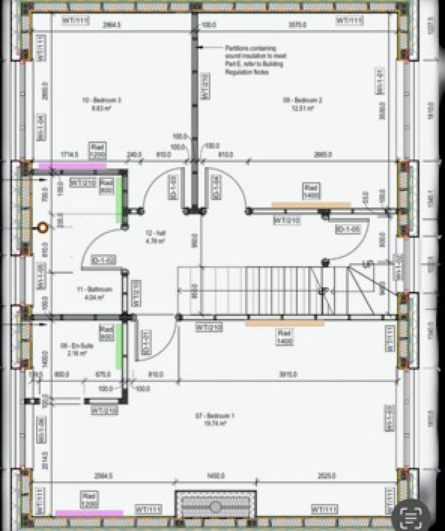
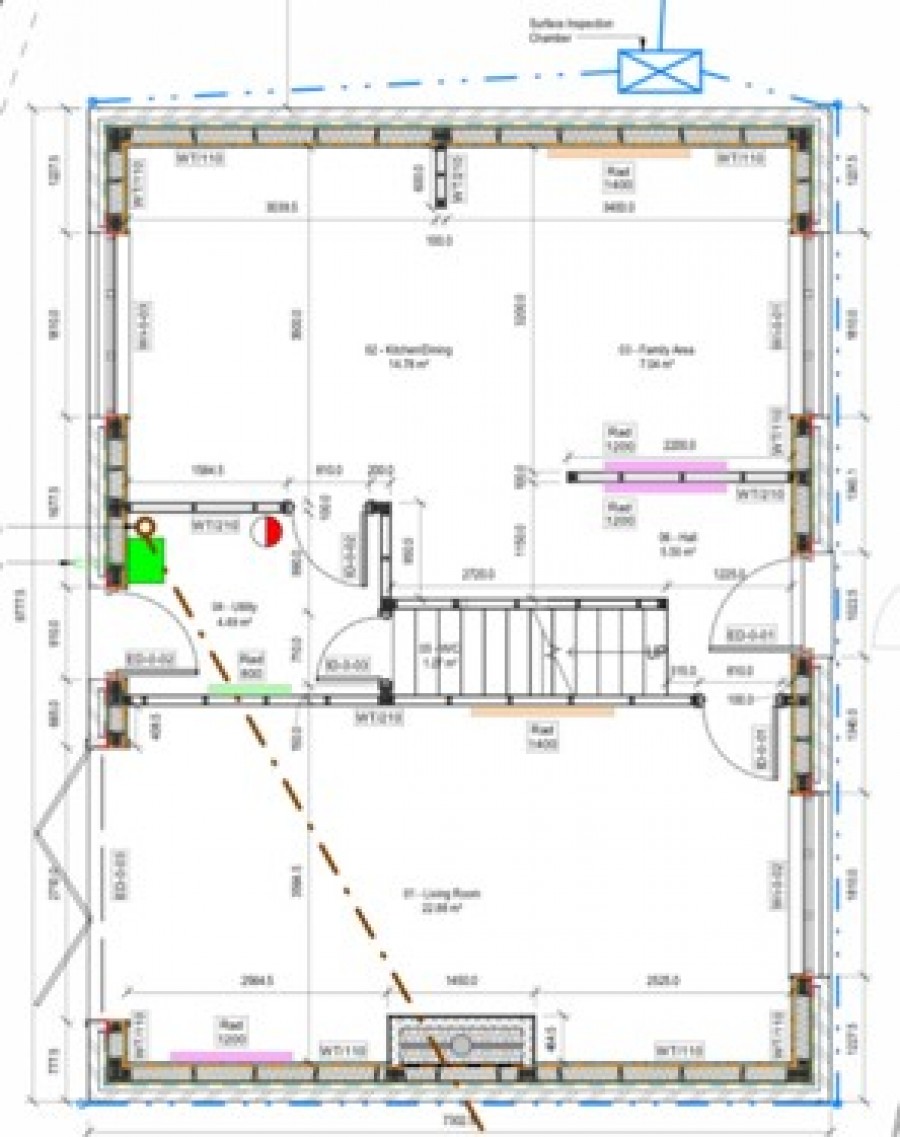
Floorplan for New Build Property, Rear Of Gilfach Cynon, Merthyr Tydfil Floorplan for New Build Property, Rear Of Gilfach Cynon, Merthyr Tydfil

Book a Viewing

1About You


@

2Pick a Day


  1. This Week
  2. Next Week
  3. In a Fortnight

3Select a Time



About Us

Walker & Lewis Estate Agents are an independent firm of estate agents based in the Pontypridd.

Read More
About Us

Property for sale

View All Properties
Sales

Register

Register for Property Updates

Register Here
Register

Valuation

How much is your property worth? Stop wondering and find out, with a property valuation from Walker & Lewis.

Book Here
Valuation