Sold Subject to Contract

Cedars, The Grove, Pontypridd

Bed icon  4    Bath icon  2    receptions icon  3

Offers in Excess of, £475,000

Save Saved
Contact Us

For further details on this property please call us

01443 218439


Book a Viewing

Features

  • Stunning 'Self Build' on Large Plot
  • Three Spacious Reception Rooms
  • Four Bedrooms with Fitted Furniture
  • En-Suite Shower Room off Master
  • Modern Kitchen & Utility Room
  • Integral Garage (smaller than average)
  • Beautifully Landscaped Gardens
  • Parking for Several Cars
  • No Onward Chain

Full Details

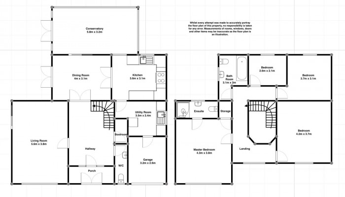
Walker and Lewis are absolutely delighted to offer for sale this amazing 'self build' family home situated on the small exclusive development of 'The Grove' just minutes from Pontypridd Town Centre. This property has never been sold before and has been modernised and extended over the years plus sits on a large plot with amazing landscaped gardens. The ground floor accommodation briefly comprises porch, large entrance hallway, cloakroom, fabulous family sized lounge, separate dining room, large conservatory plus modern fitted kitchen with quality integrated appliances plus utility room which gives access to integral garage. To the first floor you are greeted with a large gallery landing giving access to four bedrooms all with quality fitted bedroom furniture. There is a modern fitted en-suite shower room off the master bedroom plus family bathroom. Aside from the large gardens you have the benefit of parking for several cars. This property would make and outstanding family home and an internal viewing is highly recommended. Offered with no ongoing chain. Porch Entered via double upvc arch shaped doors to porch. Entrance Hall Entered via panelled and glazed doors with side screens to large inviting hallway with stairs off to first floor. Under stairs storage cupboard, further cloaks cupboard housing alarm panel plus doors to W.C, lounge and dining room. Lounge 5.60 m x 3.80 m (18'4" x 12'6") Spacious light and airy lounge with upvc double glazed window to front and decorative stained glass to side plus patio doors opening to side. Feature fire surround with electric 'Dimplex' fire. Cloakroom Fitted with a modern suite comprising close coupled w.c. and vanity wash hand basin. Half tiled walls. Upvc double glazed window to front. Dining Room 4.00 m x 3.10 m (13'1" x 10'2") Upvc double glazed french doors to garden and patio doors opening to conservatory. Double glazed doors to kitchen. Conservatory 5.80 m x 3.20 m (19'0" x 10'6") Spacious upvc double glazed conservatory with lower dwarf brick wall. Upvc double glazed french doors to garden. Kitchen 3.60 m x 3.10 m (11'10" x 10'2") Fitted with a range of quality 'Ivory' high gloss units with contrasting work top surfaces and inset ceramic one and a half sink unit. Integrated 'Neff' dishwasher and built in oven plus induction hob. Two upvc double glazed windows to side. Door to utility room. Utility Room 3.50 m x 2.40 m (11'6" x 7'10") Fitted with quality unit with inset ceramic sink unit and plumbing for automatic washing machine. Wall mounted gas central heating boiler. Upvc double glazed window to rear. Door to garage. Garage 3.20 m x 2.60 m (10'6" x 8'6") Smaller than average garage but ideal for storage. Electric roller door. Landing Spacious gallery landing with large upvc decorative stained glass to front. Doors to all rooms. Bedroom 1 4.30 m x 3.80 m (14'1" x 12'6") Upvc double glazed window to front. Range of fitted wardrobes and drawer sets. Door to built in storage cupboard with access to loft. Door to en-suite. En-suite Shower Room Fitted with a double shower cubicle, close coupled w.c and vanity wash hand basin with vanity unit. Upvc double glazed window to rear. Bedroom 2 4.20 m x 3.70 m (13'9" x 12'2") Upvc double glazed window to front. Range of fitted wardrobes. Bedroom 3 3.70 m x 3.10 m (12'2" x 10'2") Upvc double glazed window to rear. Fitted wardrobes. Bedroom 4 2.60 m x 2.10 m (8'6" x 6'11") Upvc double glazed window to rear. Fitted over head storage. Bathroom Fitted with a panelled bath with shower over, close coupled w.c. and pedestal wash hand basin. Upvc double glazed window to side. Outside Beautifully landscaped mature side and rear gardens which has been exceptionally maintained. To include composite decking area with lighting, large brick pavia patio with centre water feature, mature trees and immaculate hedge borders leading to large lawn area. Brick pavia patio to front providing parking for several cars. Electric car charger point.
Floorplan for Cedars, The Grove, Pontypridd
EPC Graph for Cedars, The Grove, Pontypridd

Book a Viewing

1About You


@

2Pick a Day


  1. This Week
  2. Next Week
  3. In a Fortnight

3Select a Time



About Us

Walker & Lewis Estate Agents are an independent firm of estate agents based in the Pontypridd.

Read More
About Us

Property for sale

View All Properties
Sales

Register

Register for Property Updates

Register Here
Register

Valuation

How much is your property worth? Stop wondering and find out, with a property valuation from Walker & Lewis.

Book Here
Valuation