Sold Subject to Contract

Plot 2 Land to the rear of Danycoed, Pontsticill,CF48 2UL

Bed icon  0    Bath icon  0    

OIRO, £90,000

Save Saved
Contact Us

For further details on this property please call us

01443 218439


Book a Viewing

Features

  • Build your dream home
  • Far reaching picturesque views
  • Rural village location

Full Details

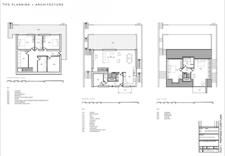
Walker and Lewis are pleased to offer for sale a parcel of land with full planning permission secured for two 4-bedroom detached residence. The property has had drainage installed in recent months and has access to the public sewer. Situated in the landscapes of the Brecon Beacons National Park, Pontsticill is a picturesque village with charm and tranquillity, this idyllic village offers a captivating blend of natural beauty, rich history, and outdoor adventures and views of the Brecon mountain Railway. Planning ref- Full Planning permission has been granted for the erection of two dwellings. Planning Ref: 22/21230/FUL.

Book a Viewing

1About You


@

2Pick a Day


  1. This Week
  2. Next Week
  3. In a Fortnight

3Select a Time



About Us

Walker & Lewis Estate Agents are an independent firm of estate agents based in the Pontypridd.

Read More
About Us

Property for sale

View All Properties
Sales

Register

Register for Property Updates

Register Here
Register

Valuation

How much is your property worth? Stop wondering and find out, with a property valuation from Walker & Lewis.

Book Here
Valuation