For Sale

Cottrell street, Aberfan, CF48 4QU

Bed icon  3    Bath icon  2    receptions icon  2

OIRO, £162,950

Save Saved
Contact Us

For further details on this property please call us

01443 218439


Book a Viewing

Features

  • Double-extended family home
  • Three double bedrooms
  • Loft room
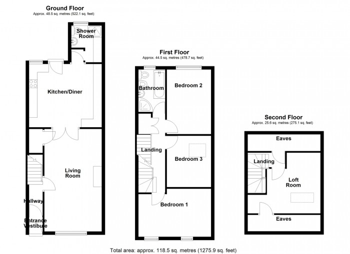
  • Accommodation measuring approximately 1275 sq.ft
  • Spacious living room
  • Impressive kitchen/dining room ideal for entertaining
  • Ground floor shower room/WC
  • Family bathroom with a separate shower cubicle
  • Low-maintenance rear garden with outbuilding
  • Rear lane access

Full Details

Walker & Lewis are delighted to offer for sale this beautifully maintained and spacious three double bedroom, double-extended family home, complete with a loft room. Ideally located within close proximity to local amenities and excellent transport links, this property presents a fantastic opportunity for a wide range of buyers. The accommodation briefly comprises an entrance hallway, a spacious living room, and an impressively sized kitchen/dining room, perfect for family living and entertaining, along with a ground floor shower room/WC. On the first floor are three well-proportioned bedrooms and a generous family bathroom/WC, featuring a separate shower cubicle. A sizeable loft room provides additional versatile space, ideal for a home office, hobby room, or occasional bedroom (subject to the necessary regulations). Externally, the property benefits from a low-maintenance rear garden with an outbuilding and rear lane access. Early viewing is highly recommended to fully appreciate the space and flexibility this lovely home has to offer. Entrance Vestibule UPVC double glazed entrance door, door to: Hallway Radiator, stairs providing access to the first floor accommodation, door to: Living Room 6.20 m x 3.50 m (20'4" x 11'6") UPVC double glazed window to the front, feature coal effect gas fire with surround, two double radiators, door to an under stairs storage cupboard, double doors to: Kitchen/Diner 4.40 m x 3.80 m (14'5" x 12'6") Impressive size Kitchen/diner fitted with a matching range of base and eye level units with worktop space over, stainless steel sink unit with single drainer and mixer tap, plumbing for automatic washing machine, space for fridge/freezer and a tumble dryer, gas point for cooker with a pull out extractor hood over, uPVC double glazed window to rear, radiator, ceramic tiled flooring, uPVC double glazed door to garden, door to: Shower Room/WC Three piece suite with tiled shower cubicle with fitted shower and matching shower base, pedestal wash hand basin and close coupled WC, uPVC obscure double glazed window to rear, storage cupboards, ceramic tiled flooring. First Floor Landing Radiator, cupboard housing a wall mounted gas combination boiler, and stairs providing access to the loft room. Bedroom One 4.40 m x 2.90 m (14'5" x 9'6") Two uPVC double glazed windows to the front, fitted bedroom suite with a range of wardrobes, shelving, overhead storage, and drawers, double radiator. Bedroom Two 3.90 m x 2.70 m (12'10" x 8'10") UPVC double glazed window to the rear, radiator. Bedroom Three 3.20 m x 2.70 m (10'6" x 8'10") Skylight window, radiator. Bathroom Five piece suite comprising panelled bath, pedestal wash hand basin, tiled shower cubicle with fitted shower, shower base and glass screen, bidet and close coupled WC, tiled splashbacks, uPVC obscure double glazed window to rear, radiator. Loft Room 4.40 m x 3.70 m (14'5" x 12'2") Skylight window, double radiator, doors to eaves storage. Outside Private and enclosed low maintenance rear garden mainly laid to patio with shrubbery, outhouse, and rear lane access.
Floorplan for Cottrell street, Aberfan, CF48 4QU Floorplan for Cottrell street, Aberfan, CF48 4QU
EPC Graph for Cottrell street, Aberfan, CF48 4QU

Book a Viewing

1About You


@

2Pick a Day


  1. This Week
  2. Next Week
  3. In a Fortnight

3Select a Time



About Us

Walker & Lewis Estate Agents are an independent firm of estate agents based in the Pontypridd.

Read More
About Us

Property for sale

View All Properties
Sales

Register

Register for Property Updates

Register Here
Register

Valuation

How much is your property worth? Stop wondering and find out, with a property valuation from Walker & Lewis.

Book Here
Valuation